
一、項目基本概況

箱涵位置圖

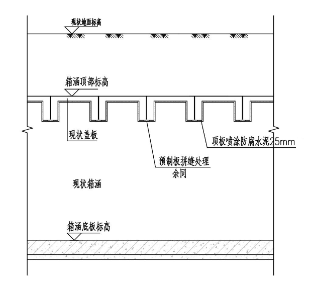
箱涵頂板剖面圖
黃孝河機場河流域綜合治理一期工程是武漢市“三湖三河”水環境治理工程的重要組成部分。2020年8月,工程正式啟動,目標是提升城市行洪排澇能力、提升水環境質量。主要工程包括骨干管涵及河道清淤、提質增效管涵非開挖修復等。暗涵建設于20 世紀 80 年代,經過 30 余年的運行,暗涵內出現了較多缺陷,為徹底修復暗涵內部缺陷,武漢市水務局啟動了黃孝河暗涵全線修復。其中,清淤及缺陷修復管網總長64.2公里,包括黃孝河箱涵5.3公里、機場河箱涵8公里。
位置:本次工程內容為黃孝河暗涵水泥砂漿噴涂修復,具體起于青年路與黃孝西路交叉口,經建設大道與黃孝河路,終止于明渠起端。
修復工程量:本次暗涵修復內容主要包括滲漏修復及防腐修復。滲漏修復主要采用注漿止水的方式,滲漏修復主要包括橫向拼縫止漏、縱向拼縫止漏、蓋板與墻體之間的結合縫注漿密實。主要工程量滲漏修復總長度為 39253m,蓋板防腐修復在滲漏修復完成后進行,主要采用噴涂 25mm 防腐水泥砂漿+3mm 高分子材料噴涂防腐修復工藝,工程量約為 92000 ㎡。
二、施工流程
01
箱涵蓋板表面沖洗拉毛處理
施工內容:箱涵頂板高壓水槍沖洗(不小于35MPa),清理去除混凝土劣質層,腐蝕層2-3毫米;局部表面鑿毛,直至露出有效結構層;
技術要求:表面高壓沖洗后應達到,原來的腐蝕層混凝土劣質層完全清除干凈,新的防腐水泥砂漿噴涂后要有足夠的粘合力。28天后檢測拉拔測試應>1.0Mpa。

清洗前后對比
02
蓋板拼縫堵漏止水處理
施工內容:鉆孔、開槽、(貫穿滲水縫需用聚氨酯遇水發泡材料臨時環氧材料注漿、止水膨脹膠條封縫;
技術要求:處理完成后,24小時后觀察是否滲漏。




注漿止漏及效果
03
防腐水泥噴涂施工
施工內容:噴涂總厚度為 25mm,厚度誤差控制<10%
工藝特點:
1.整個修復過程安全快速可靠,無需開挖修復;
2.施工時間短,一般檢查井1小時內可完成修復;
3.修復后的井壁結構連續;
4.材料具有超高強度,耐磨,硬化后不透水;
5.特殊設備體積小,安裝、轉移方便;
6.無機防腐灰漿耐酸耐腐蝕,微裂紋能自動修復。




水泥砂漿噴涂與噴涂后效果

四、修復完工


四川省成都市武侯區世紀城路198號